info@sksmirnov.ru
Ежедневно с 09:00 до 21:00
Работаем без выходных
Строительство из сухого и клееного бруса под ключ































































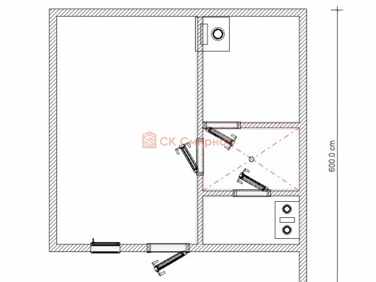
Для строительства красивой бани 3.4х5 метров СК Смирнов разработал проект №223 с обустроенной парной и комнатой отдыха. По планировке общая площадь составляет 17 квадратных метров. Мы строим бани под ключ с полной отделкой снаружи и внутри.
Такая одноэтажная баня 3.4х5 может быть построена из бруса. Ориентировочный срок строительства 13 дней.
Вам нравится проект №223, но вы хотели бы внести изменения? Пришлите нам сообщение с описанием, фото, планом, чертежом, эскизом или ссылкой на другой сайт, мы постараемся учесть все пожелания и сообщим точную стоимость строительства. Услуга изменения проекта бесплатная.
ПРЕЖДЕ ЧЕМ СТРОИТЬ! Определитесь заранее, чего вы на самом деле хотите: либо вы в гонке за «хочу дешевле, но неважно как», либо все-таки думаете о будущем и хотите получить качественную постройку.
Сравните два видео: результат «дома по акции» и работу СК Смирнов. Задавайте любые вопросы в комментариях ниже, руководитель СК Смирнов ответит и даст совет в области строительства.
При заказе бани с доставкой в готовом виде или сборкой на участке в 2023 году в подарок:
То есть в подарок вы получаете топовую комплектацию бани со всеми нашими последними усовершенствованиями. Редкое предложение, которым определённо стоит воспользоваться!
Профиль бруса имеет наплыв, посмотрите видео и все поймете. Этот профиль не позволяет нам экономить на количестве материала, нам нужно всегда на один ряд бруса больше чем в эконом вариантах с которыми вы нас сравниваете! но второе видео как раз все показывает что вы получите сэкономив.
Также делаем исключительно из безсучковой осины, следующее может вам показать абсурдом, но мы делаем все дисковой пилой аккуратно, торцы доски обрабатываем наждачкой чтоб вам комфортно было сидеть. Почему я говорю про абсурд, потому что вы можете получить всю баню сделанную только бензопилой и говорить о занозах и торцах в 90 градусов, хорошем стыке не приходится. Но можно только думать и надеяться о хорошем до получения бани что вы нашли подешевле и там будет все хорошо! Полезное видео как может быть, и это не шутки.
Можно сделать парную полностью из кедровой вагонки и пологи также из кедра. Кедр не выделяем смолу и смотрится более красиво и богато, а главное более практичен, осина более подвержена плесневению так как не содержит смол.
Если мы устанавливаем печь то поверьте, под печью, бок у стены, проход через стену будет сделан из кирпича, красиво, аккуратно, безопасно и с некоторых пор мы устанавливаем кирпич гладкий и красивый с двух сторон, раньше 99% кирпича имели одну сторону красивую, это сторона выходила в комнату отдыха, а в парной было ужасно. Но мы нашли свой кирпич и теперь выглядит это достойно с двух сторон. Еще видео что мы встречали в своей практике. Но по факту все же сделано, только как.
Мы сверлим отверстия в верхнем брусе, смотрите видео и пометьте для себя этот не маловажный фактор.
На время строительства необходимо предоставить проживание для бригады. Если жилье отсутствует то мы предоставим бытовку для проживания, она платная и останется после завершения строительства у вас.
Окна мы устанавливаем настоящие деревянные стеклопакеты с фурнитурой как на пластиковых окнах, дерево используется клееное, повторюсь, не имитация деревянных стеклопакетов, а именно качественные окна.
Обязательный элемент брусового дома или бани, это брусок в пиленный в брус в проем двери или окна не менее 50х50мм. Обязательно должен оставаться зазор сверху на усадку и этот брусок не должен быть жёстко закреплен в проеме. В некоторых случаях внутри помещения ставим металлические ройки, уточняйте. Посмотрите отрывок видео как могут повести себя стены
Лаги, обвязку и черновой пол обрабатываем раствором био огне защитой ( зимой оговариваются отдельные условия ), в основном красный цвет, но может быть и бесцветная обработка.
Делается из бруса 150х150 в один ряд
Установка печи Теплодар Русь сетка 12 л панорама ( со стеклянной дверцей ), трубы сэндвич, проходы и зонт входят в стоимость бани. Экран металлический через стену. На полу кладется кирпич, базальтовый картон, минерит. На стенах базальтовый картон, минерит, через втулки прикручивается минерит. Ссылка на сайт производителя https://www.teplodar.ru/catalog/detail/rus_setka_12_l_panorama/
В этой серии бань делается электропроводка открытая, выключатели, светильники, розетки.
В стоимость данного типа бань входит покраска ее снаружи на два слоя из палитры пропиток Биотекс.
Во все помещения внутри ставятся двери стеклянные прозрачные с бронзовым отливом, стекло толщиной 8мм. На двери магнитный фиксатор.
Мягкая черепица фирмы Технониколь Шинглас, цвет красный, коричневый или зеленый. Другие серии и цвета по согласованию.
В комплект бани входит стол и две скамейки из доски 19мм, как на фото. Есть комплекты из более толстой доски а также из кедра, смотрите в доп комплектации.
В парной устанавливается один вентиляционный клапан, можно заказать дополнительно и в других помещениях или внизу парной приточную вентиляцию.
В помывочной устанавливается бойлер, бак, насос, смеситель, одним словом полный комплект чтобы принимать душ даже без центрального водоснабжения.
В комнате для приема душевых процедур на полу устанавливается душевой пластиковый поддон который имеет слив на улицу. В поддоне лежит деревянный трапик для удобства.
На полу укладывается доска половая толщиной 28мм, крепится саморезами в потай.
В эти бани уже входит в стоимость печь Теплодар Русь Каменка Л, обкладка ее кирпичом с трех сторон ( на пол кладется кирпич, на него базальтовый картон и лист минерита, фасад и боковая стенка выложена из кирпича ). Трубы из нержавеющей стали 1мм сэндвичи ( двойные ) , поворотная задвижка, зонт и все необходимые элементы. Есть печь с панорамным стеклом Русь каменка Панорама, она дороже немного, скоро фото и видео появится.
При заказе бани с доставкой в готовом виде или сборкой на участке в 2023 году в подарок:
То есть в подарок вы получаете топовую комплектацию бани со всеми нашими последними усовершенствованиями. Редкое предложение, которым определённо стоит воспользоваться!
Профиль бруса имеет наплыв, посмотрите видео и все поймете. Этот профиль не позволяет нам экономить на количестве материала, нам нужно всегда на один ряд бруса больше чем в эконом вариантах с которыми вы нас сравниваете! но второе видео как раз все показывает что вы получите сэкономив.
Если мы устанавливаем печь то поверьте, под печью, бок у стены, проход через стену будет сделан из кирпича, красиво, аккуратно, безопасно и с некоторых пор мы устанавливаем кирпич гладкий и красивый с двух сторон, раньше 99% кирпича имели одну сторону красивую, это сторона выходила в комнату отдыха, а в парной было ужасно. Но мы нашли свой кирпич и теперь выглядит это достойно с двух сторон. Еще видео что мы встречали в своей практике. Но по факту все же сделано, только как.
В бане из кедра не стоит обшивать стены вагонкой, так как кедр выделяет очень мало смолы и это не помешает пользоваться комфортно баней, потолок обшит кедровой вагонкой. Пологи из кедровой доски.
Мы сверлим отверстия в верхнем брусе, смотрите видео и пометьте для себя этот не маловажный фактор.
На время строительства необходимо предоставить проживание для бригады. Если жилье отсутствует то мы предоставим бытовку для проживания, она платная и останется после завершения строительства у вас.
Окна мы устанавливаем настоящие деревянные стеклопакеты с фурнитурой как на пластиковых окнах, дерево используется клееное, повторюсь, не имитация деревянных стеклопакетов, а именно качественные окна.
Обязательный элемент брусового дома или бани, это брусок в пиленный в брус в проем двери или окна не менее 50х50мм. Обязательно должен оставаться зазор сверху на усадку и этот брусок не должен быть жёстко закреплен в проеме. В некоторых случаях внутри помещения ставим металлические ройки, уточняйте. Посмотрите отрывок видео как могут повести себя стены
Лаги, обвязку и черновой пол обрабатываем раствором био огне защитой ( зимой оговариваются отдельные условия ), в основном красный цвет, но может быть и бесцветная обработка.
Делается из бруса 150х150 в один ряд
Установка печи Теплодар Русь сетка 12 л панорама ( со стеклянной дверцей ), трубы сэндвич, проходы и зонт входят в стоимость бани. Экран металлический через стену. На полу кладется кирпич, базальтовый картон, минерит. На стенах базальтовый картон, минерит, через втулки прикручивается минерит. Ссылка на сайт производителя https://www.teplodar.ru/catalog/detail/rus_setka_12_l_panorama/
В этой серии бань делается электропроводка открытая, выключатели, светильники, розетки.
В стоимость данного типа бань входит покраска ее снаружи на два слоя из палитры пропиток Биотекс.
Во все помещения внутри ставятся двери стеклянные прозрачные с бронзовым отливом, стекло толщиной 8мм. На двери магнитный фиксатор.
Мягкая черепица фирмы Технониколь Шинглас, цвет красный, коричневый или зеленый. Другие серии и цвета по согласованию.
В комплект бани входит стол и две скамейки из доски 19мм, как на фото. Есть комплекты из более толстой доски а также из кедра, смотрите в доп комплектации.
В парной устанавливается один вентиляционный клапан, можно заказать дополнительно и в других помещениях или внизу парной приточную вентиляцию.
В помывочной устанавливается бойлер, бак, насос, смеситель, одним словом полный комплект чтобы принимать душ даже без центрального водоснабжения.
В комнате для приема душевых процедур на полу устанавливается душевой пластиковый поддон который имеет слив на улицу. В поддоне лежит деревянный трапик для удобства.
На полу укладывается доска половая толщиной 28мм, крепится саморезами в потай.
В эти бани уже входит в стоимость печь Теплодар Русь Каменка Л, обкладка ее кирпичом с трех сторон ( на пол кладется кирпич, на него базальтовый картон и лист минерита, фасад и боковая стенка выложена из кирпича ). Трубы из нержавеющей стали 1мм сэндвичи ( двойные ) , поворотная задвижка, зонт и все необходимые элементы. Есть печь с панорамным стеклом Русь каменка Панорама, она дороже немного, скоро фото и видео появится.
При заказе бани с доставкой в готовом виде или сборкой на участке в 2023 году в подарок:
То есть в подарок вы получаете топовую комплектацию бани со всеми нашими последними усовершенствованиями. Редкое предложение, которым определённо стоит воспользоваться!
Профиль бруса имеет наплыв, посмотрите видео и все поймете. Этот профиль не позволяет нам экономить на количестве материала, нам нужно всегда на один ряд бруса больше чем в эконом вариантах с которыми вы нас сравниваете! но второе видео как раз все показывает что вы получите сэкономив.
Также делаем исключительно из безсучковой осины, следующее может вам показать абсурдом, но мы делаем все дисковой пилой аккуратно, торцы доски обрабатываем наждачкой чтоб вам комфортно было сидеть. Почему я говорю про абсурд, потому что вы можете получить всю баню сделанную только бензопилой и говорить о занозах и торцах в 90 градусов, хорошем стыке не приходится. Но можно только думать и надеяться о хорошем до получения бани что вы нашли подешевле и там будет все хорошо! Полезное видео как может быть, и это не шутки.
Можно сделать парную полностью из кедровой вагонки и пологи также из кедра. Кедр не выделяем смолу и смотрится более красиво и богато, а главное более практичен, осина более подвержена плесневению так как не содержит смол.
Если мы устанавливаем печь то поверьте, под печью, бок у стены, проход через стену будет сделан из кирпича, красиво, аккуратно, безопасно и с некоторых пор мы устанавливаем кирпич гладкий и красивый с двух сторон, раньше 99% кирпича имели одну сторону красивую, это сторона выходила в комнату отдыха, а в парной было ужасно. Но мы нашли свой кирпич и теперь выглядит это достойно с двух сторон. Еще видео что мы встречали в своей практике. Но по факту все же сделано, только как.
Мы сверлим отверстия в верхнем брусе, смотрите видео и пометьте для себя этот не маловажный фактор.
На время строительства необходимо предоставить проживание для бригады. Если жилье отсутствует то мы предоставим бытовку для проживания, она платная и останется после завершения строительства у вас.
Окна мы устанавливаем настоящие деревянные стеклопакеты с фурнитурой как на пластиковых окнах, дерево используется клееное, повторюсь, не имитация деревянных стеклопакетов, а именно качественные окна.
Обязательный элемент брусового дома или бани, это брусок в пиленный в брус в проем двери или окна не менее 50х50мм. Обязательно должен оставаться зазор сверху на усадку и этот брусок не должен быть жёстко закреплен в проеме. В некоторых случаях внутри помещения ставим металлические ройки, уточняйте. Посмотрите отрывок видео как могут повести себя стены
Лаги, обвязку и черновой пол обрабатываем раствором био огне защитой ( зимой оговариваются отдельные условия ), в основном красный цвет, но может быть и бесцветная обработка.
Делается из бруса 150х150 в один ряд
В этой серии бань делается электропроводка открытая, выключатели, светильники, розетки.
В стоимость данного типа бань входит покраска ее снаружи на два слоя из палитры пропиток Биотекс.
Во все помещения внутри ставятся двери стеклянные прозрачные с бронзовым отливом, стекло толщиной 8мм. На двери магнитный фиксатор.
Мягкая черепица фирмы Технониколь Шинглас, цвет красный, коричневый или зеленый. Другие серии и цвета по согласованию.
В комплект бани входит стол и две скамейки из доски 19мм, как на фото. Есть комплекты из более толстой доски а также из кедра, смотрите в доп комплектации.
В парной устанавливается один вентиляционный клапан, можно заказать дополнительно и в других помещениях или внизу парной приточную вентиляцию.
В помывочной устанавливается бойлер, бак, насос, смеситель, одним словом полный комплект чтобы принимать душ даже без центрального водоснабжения.
В комнате для приема душевых процедур на полу устанавливается душевой пластиковый поддон который имеет слив на улицу. В поддоне лежит деревянный трапик для удобства.
На полу укладывается доска половая толщиной 28мм, крепится саморезами в потай.
В эти бани уже входит в стоимость печь Теплодар Русь Каменка Л, обкладка ее кирпичом с трех сторон ( на пол кладется кирпич, на него базальтовый картон и лист минерита, фасад и боковая стенка выложена из кирпича ). Трубы из нержавеющей стали 1мм сэндвичи ( двойные ) , поворотная задвижка, зонт и все необходимые элементы. Есть печь с панорамным стеклом Русь каменка Панорама, она дороже немного, скоро фото и видео появится.
При заказе бани с доставкой в готовом виде или сборкой на участке в 2023 году в подарок:
То есть в подарок вы получаете топовую комплектацию бани со всеми нашими последними усовершенствованиями. Редкое предложение, которым определённо стоит воспользоваться!
Профиль бруса имеет наплыв, посмотрите видео и все поймете. Этот профиль не позволяет нам экономить на количестве материала, нам нужно всегда на один ряд бруса больше чем в эконом вариантах с которыми вы нас сравниваете! но второе видео как раз все показывает что вы получите сэкономив.
Если мы устанавливаем печь то поверьте, под печью, бок у стены, проход через стену будет сделан из кирпича, красиво, аккуратно, безопасно и с некоторых пор мы устанавливаем кирпич гладкий и красивый с двух сторон, раньше 99% кирпича имели одну сторону красивую, это сторона выходила в комнату отдыха, а в парной было ужасно. Но мы нашли свой кирпич и теперь выглядит это достойно с двух сторон. Еще видео что мы встречали в своей практике. Но по факту все же сделано, только как.
В бане из кедра не стоит обшивать стены вагонкой, так как кедр выделяет очень мало смолы и это не помешает пользоваться комфортно баней, потолок обшит кедровой вагонкой. Пологи из кедровой доски.
Мы сверлим отверстия в верхнем брусе, смотрите видео и пометьте для себя этот не маловажный фактор.
На время строительства необходимо предоставить проживание для бригады. Если жилье отсутствует то мы предоставим бытовку для проживания, она платная и останется после завершения строительства у вас.
Окна мы устанавливаем настоящие деревянные стеклопакеты с фурнитурой как на пластиковых окнах, дерево используется клееное, повторюсь, не имитация деревянных стеклопакетов, а именно качественные окна.
Обязательный элемент брусового дома или бани, это брусок в пиленный в брус в проем двери или окна не менее 50х50мм. Обязательно должен оставаться зазор сверху на усадку и этот брусок не должен быть жёстко закреплен в проеме. В некоторых случаях внутри помещения ставим металлические ройки, уточняйте. Посмотрите отрывок видео как могут повести себя стены
Лаги, обвязку и черновой пол обрабатываем раствором био огне защитой ( зимой оговариваются отдельные условия ), в основном красный цвет, но может быть и бесцветная обработка.
Делается из бруса 150х150 в один ряд
В этой серии бань делается электропроводка открытая, выключатели, светильники, розетки.
В стоимость данного типа бань входит покраска ее снаружи на два слоя из палитры пропиток Биотекс.
Во все помещения внутри ставятся двери стеклянные прозрачные с бронзовым отливом, стекло толщиной 8мм. На двери магнитный фиксатор.
Мягкая черепица фирмы Технониколь Шинглас, цвет красный, коричневый или зеленый. Другие серии и цвета по согласованию.
В комплект бани входит стол и две скамейки из доски 19мм, как на фото. Есть комплекты из более толстой доски а также из кедра, смотрите в доп комплектации.
В парной устанавливается один вентиляционный клапан, можно заказать дополнительно и в других помещениях или внизу парной приточную вентиляцию.
В помывочной устанавливается бойлер, бак, насос, смеситель, одним словом полный комплект чтобы принимать душ даже без центрального водоснабжения.
В комнате для приема душевых процедур на полу устанавливается душевой пластиковый поддон который имеет слив на улицу. В поддоне лежит деревянный трапик для удобства.
На полу укладывается доска половая толщиной 28мм, крепится саморезами в потай.
В эти бани уже входит в стоимость печь Теплодар Русь Каменка Л, обкладка ее кирпичом с трех сторон ( на пол кладется кирпич, на него базальтовый картон и лист минерита, фасад и боковая стенка выложена из кирпича ). Трубы из нержавеющей стали 1мм сэндвичи ( двойные ) , поворотная задвижка, зонт и все необходимые элементы. Есть печь с панорамным стеклом Русь каменка Панорама, она дороже немного, скоро фото и видео появится.

Используем брус с финским профилем с наплывом

Сборка сруба со сверлением (аналог проужинного узла)
Не нашли нужной услуги? Возможно, мы просто забыли её добавить. Пожалуйста, уточните у менеджера возможность внесения изменений по вашему желанию. Мы стараемся всегда идти навстречу клиенту (если это противоречит законам физики).
| Город | Расстояние, км | Цена, руб |
|---|---|---|
| Алексеевка | 1300 | 104000 |
| Белгород | 1200 | 96000 |
| Бирюч | 1300 | 104000 |
| Валуйки | 1300 | 104000 |
| Грайворон | 1300 | 104000 |
| Губкин | 1200 | 96000 |
| Короча | 1300 | 104000 |
| Новый Оскол | 1300 | 104000 |
| Старый Оскол | 1200 | 96000 |
| Строитель | 1200 | 96000 |
| Шебекино | 1300 | 104000 |
Стоимость доставки материалов зависит от расстояния до места строительства — тариф 80 руб/км от Великого Новгорода.
Расчёт цены по калькулятору лишь ориентировочный — для проектов большой площади необходимо отправлять 2 грузовика, соответственно стоимость увеличится в 2 раза.
Если вы не нашли Вашего населённого пункта, воспользуйтесь поиском по карте или напишите на почту sksmirnov@mail.ru
Если технология строительства пережила много поколений и до сих пор используется — значит это хорошая технология. Мы строим дома из профилированного бруса с 2007 года и сильно продвинулись в этом направлении. В СК Смирнов используются 2 особенности при сборке сруба, на которые большинство компаний не тратят времени:
Практически все строительные компании, ориентирующиеся на средний класс, закупаются на одной базе. Мы же делаем брус самостоятельно. Наша фишка — удлинённый наплыв по бокам бруска. При сборке сруба наплыв верхнего венца закрывает нижний на 2-3 см. Этого хватает, чтобы обеспечить герметичное соединение и предотвратить появление межвенцовых щелей во время усадки. Это очень важно при бюджетном строительстве из бруса естественной влажности, который без вариантов даст высокую степень усадки.

Главная проблема брусовых домов — усадка, после которой в срубе возникают щели в палец толщиной. Так случается, когда строят из дешёвого сырого бруса, плотно сажая венцы на гвозди (деревянные или металлические — без разницы). Мы же тратим время на сборку со сверлением. То есть сажаем брусья на металлические гвозди и в верхнем венце высверливаем отверстие под каждую шляпку. Поэтому во время усадки бруски не зависают на гвоздях, деформируя сруб, а свободно по ним скользят. Технология трудо- и времязатратная, но результат потрясающий — даже в срубах из сырого бруса практически нет щелей.

От первого звонка нашему менеджеру до начала строительства может пройти от месяца до года — зависит от сложности и согласования проекта. Расскажем про типичный заказ:

Политика конфиденциальности